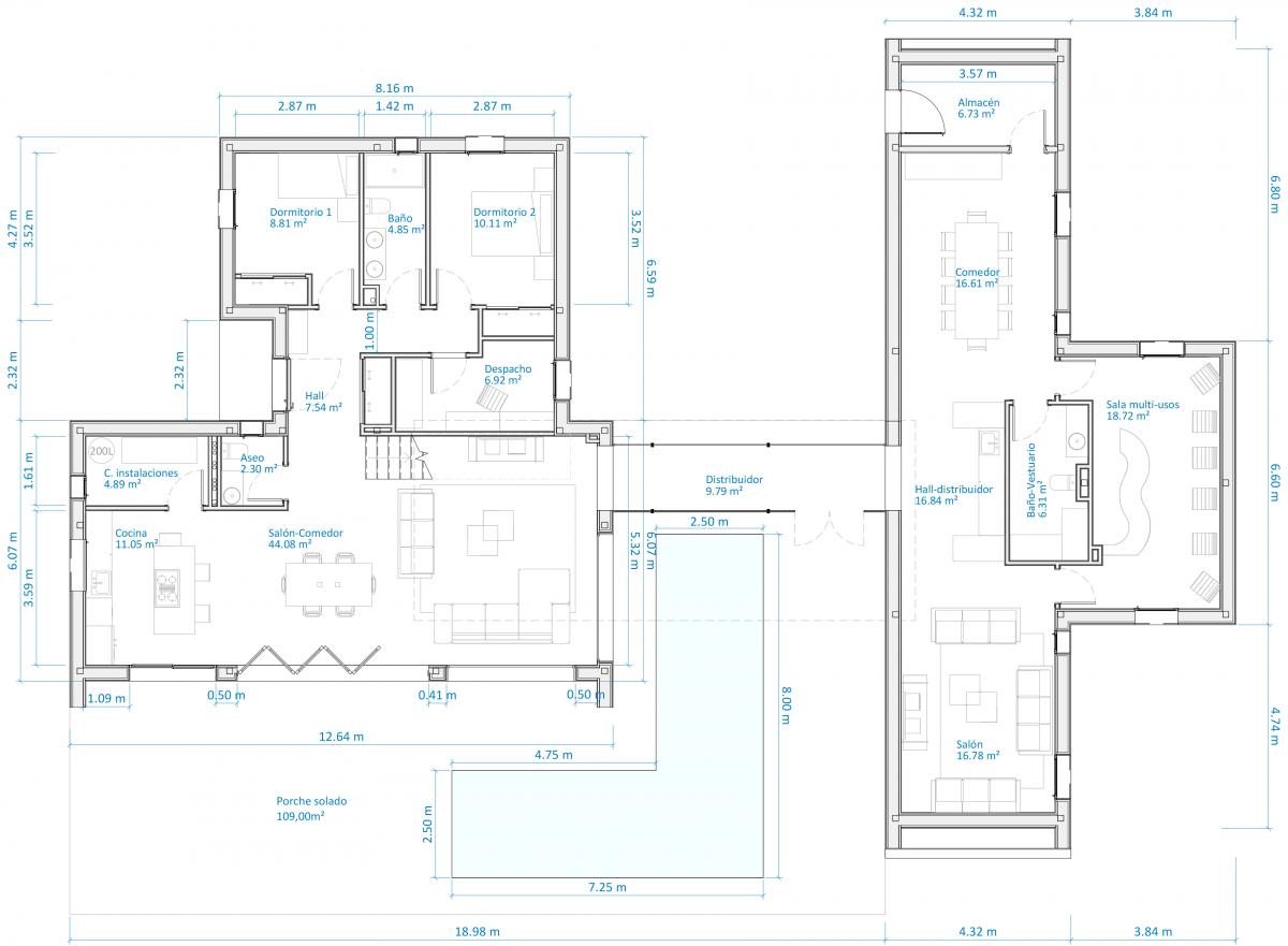
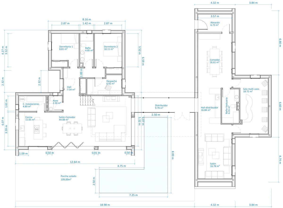
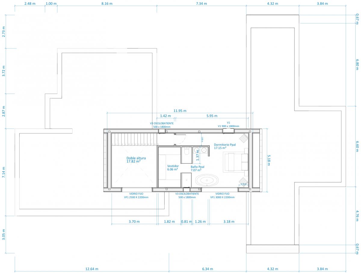
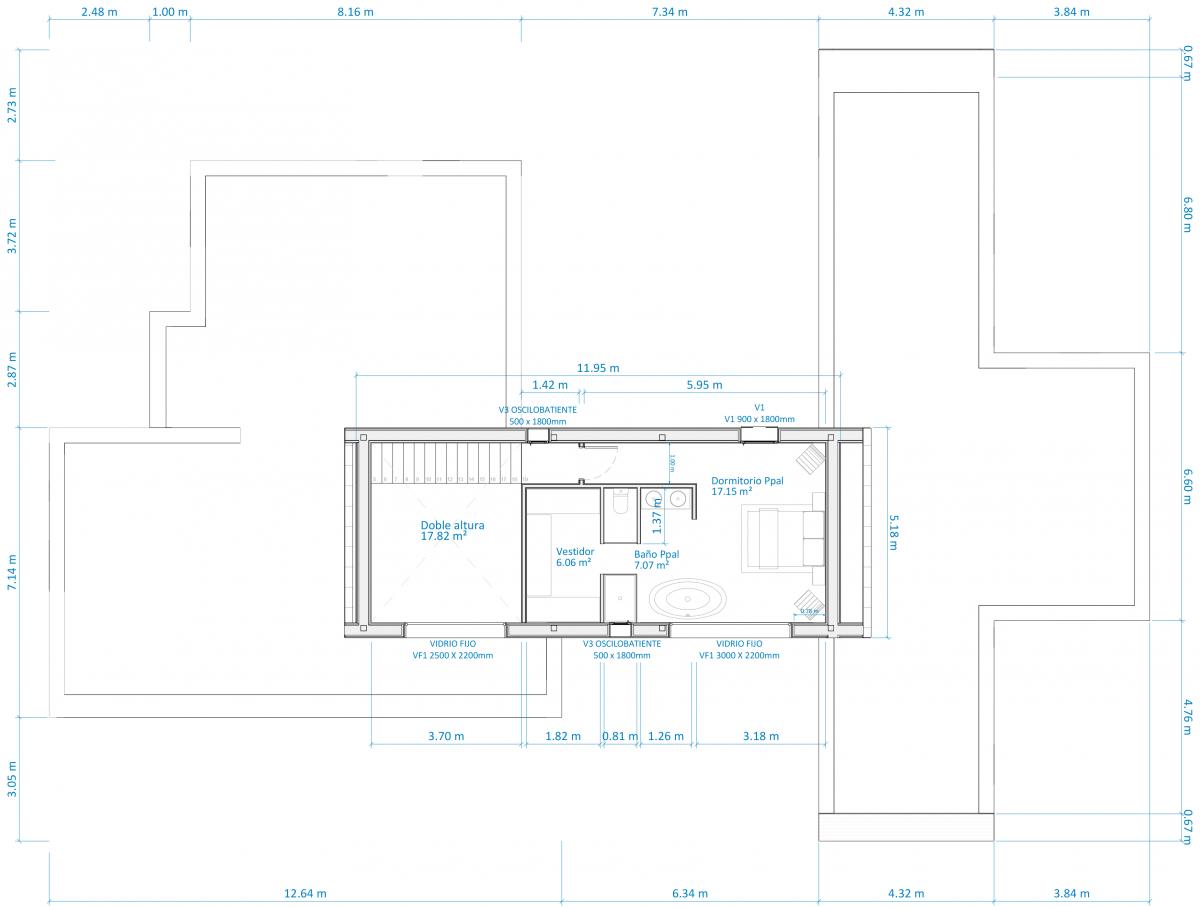
MODELO VELÁZQUEZ 410.6.4
VIVIENDA UNIFAMILIAR DE PLANTA BAJA Y PRIMERA
Construcción de chalet de lujo en la Urbanización El Bosque de Villaviciosa de Odón, en Madrid

Villaviciosa de Odón, Madrid
Colección de imágenes










Construcción de chalet de lujo en la Urbanización El Bosque de Villaviciosa de Odón, en Madrid










